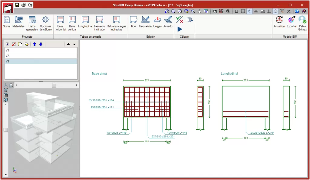
从 BIM 模型导入
用户可以使用此应用程序导入梁,并通过助手筛选梁,筛选条件为深度/长度比。StruBIM Deep Beams 会从 IFC 文件中导入符合用户指定深度/长度比的梁几何形状。包含梁几何信息的 IFC 文件可以由 Revit 或 CYPECAD 生成。
更新流程
如果再次导入 IFC 文件,则可以导入新的梁。可以修改先前导入的梁,并删除 BIM 模型中已不存在的梁。
导出
StruBIM Deep Beams 允许用户通过生成 IFC 文件,将已设计到 BIM 模型中的梁的钢筋信息导出。此外,设计报告和图纸分别以“PDF”和“DXF”格式导出为BIM模型的附件文档。
北京森斯尔科技有限公司
Beijing Sincere Technology Co., Ltd.
总部/Headquarters in Beijing
座机:0086-010-61419525
手机:0086-13911298035
邮箱:info@yiguoyouxuan.com
地址:北京市顺义区南法信旭辉空港中心C栋518室
邮编:101306
天津办事处/Office in Tianjin:
地址:天津市南开区红旗路乐谷商务中心A座1703室
Oasys
品牌产品
国内业务
Domestic Cooperation
国际业务
International Cooperation
Whatsapp:0086-15010461677